ciao ragazzi, sentivate già la mia mancanza, ditelo
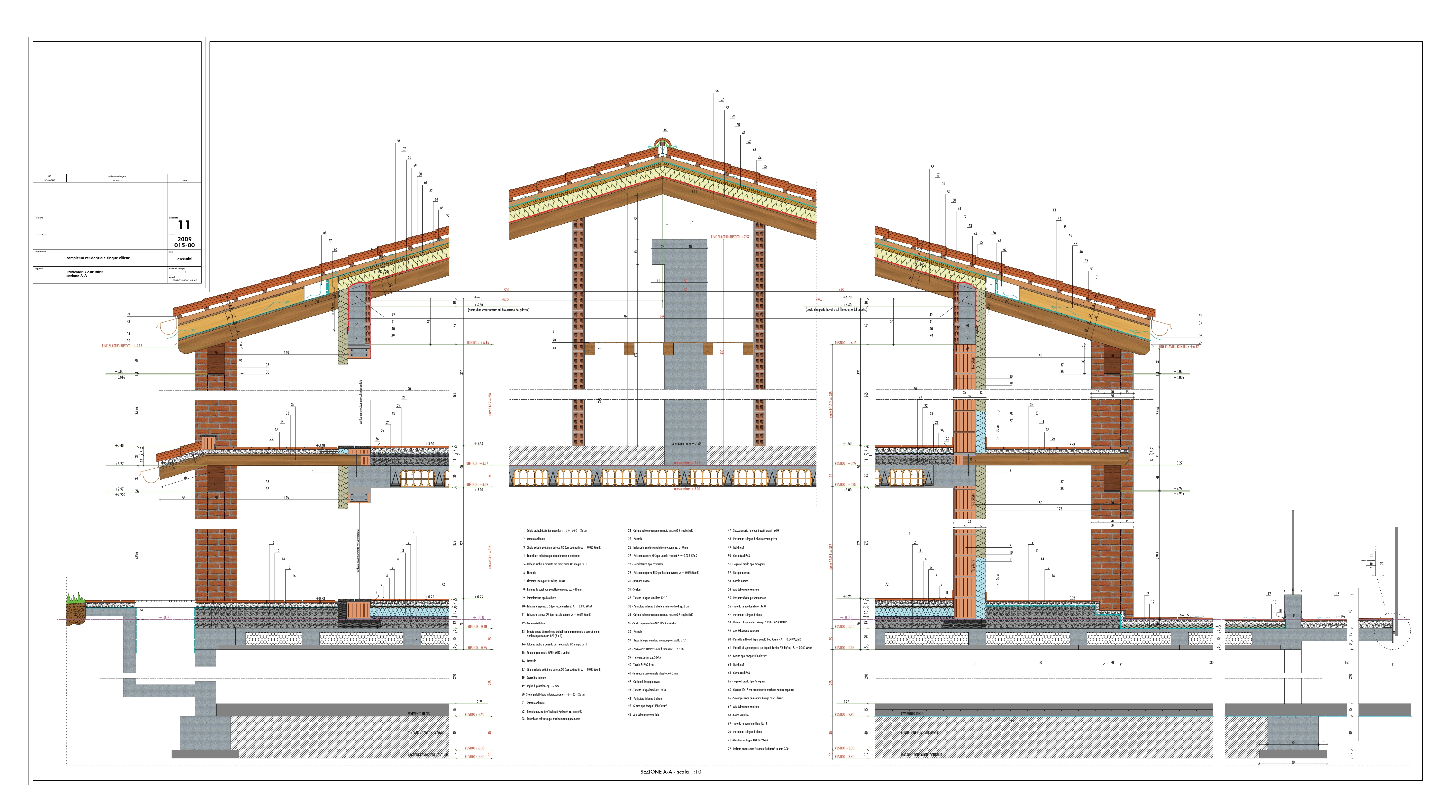
cmq, come detto nell'altro post ecco il nuovo progetto, intanto vi mostro un pò di cose "diverse" da quelle che di solito si vedono nei rendering, quindi la struttura in c.a. e la struttura del tetto. sono "particolari" che di solito inserisco nelle tavole di cantiere per dare una linea di massima all'impresa. (5 minuti di tex e 5 minuti di rendering)
la riprenderò in mano forse verso fine settimana credo, se no rimando tutto alla prossima per finirla.
Ciao Gabriele, ma la notte dormi oppure ponderi? :D :D :D cmq bravo...seguo anche questo, mi interessa il discorso delle klimahaus...in Germania stanno proprio avanti.
ciao mauro, ahahahah la notte appena dopo la sera lavoro, la notte profonda invece........non si può dire.
cmq tutte le abitazioni/ville noi le facciamo con casa clima, o meglio cerchiamo di farle, alcuni non vogliono spingersi così oltre, tipo il rendering della "villa tradizionale".
credo che questa rimarrà solo casa clima, ma non vedo l'ora di vedere finita la villa che sto facendo a Treviglio che sarà Passiva. :D
intanto ti ringrazio, magari farò anche altri particolari da allegare.
Tutti i rendering postati sono realizzati dallo studio 3DMOOD di cesgimami & walkin
Quando scrivi qualcosa con una penna, pensi alle parole, non alla penna. Quando crei qualcosa con un Mac, pensi al tuo progetto, non al Mac. Diventa invisibile e stimola la creatività.
Anche se la porta è la stessa, non tutti quelli che vi si affacciano vedono le stesse cose: la veduta dipende dallo sguardo.
ahahhahahaha ma li faccio di sera, poi cmq modellando tutto con allplan per fargli fare il computo, mettere due texture e fare il rendering porta via 1 ora a dir tanto.
a me tipo chi fornisce il legname dei tetti mi fa le piante in 2d e poi i rendering, idem i prefabbricatori, idem chi fornisce le solette in c.a.
tu invece fai ancora solo i particolari in 2d?
poi ovvio, ci sono tutte le tavole 2d, più la tavola è chiara, meno ti chiamano in cantiere.
già che ci siamo ti allego anche una tavola in 2d fatta da allplan
gabriele__82 wrote:a me tipo chi fornisce il legname dei tetti mi fa le piante in 2d e poi i rendering, idem i prefabbricatori, idem chi fornisce le solette in c.a.
tu invece fai ancora solo i particolari in 2d?
io si, faccio ancora i particolari in 2d se li do all'impresa, perchè a me il render di un particolare l'impresa non lo paga, quando me lo pagherà lo faro' in 3d, oppure potrei fare anche un plastico in balsa volendo
anzi per ottimizzare i tempi alcuni particolari li schizzo a mano libera, molte volte su fogli volanti senza cornici, se lavoro con un'impresa che se ne capisce, altrimenti lo disegno al pc (in 2d)
ovvio che se si ha del tempo libero si possono modellare anche i bulloni, ma si tratta solo di hobby, non serve sicuramente per l'esecuzione dei lavori
ciao_______
FOLLOW US