da 3D a pianta 2D
Moderatori: Arkimed, natas, visualtricks, cappellaiomatto
-
- Advertising
da 3D a pianta 2D
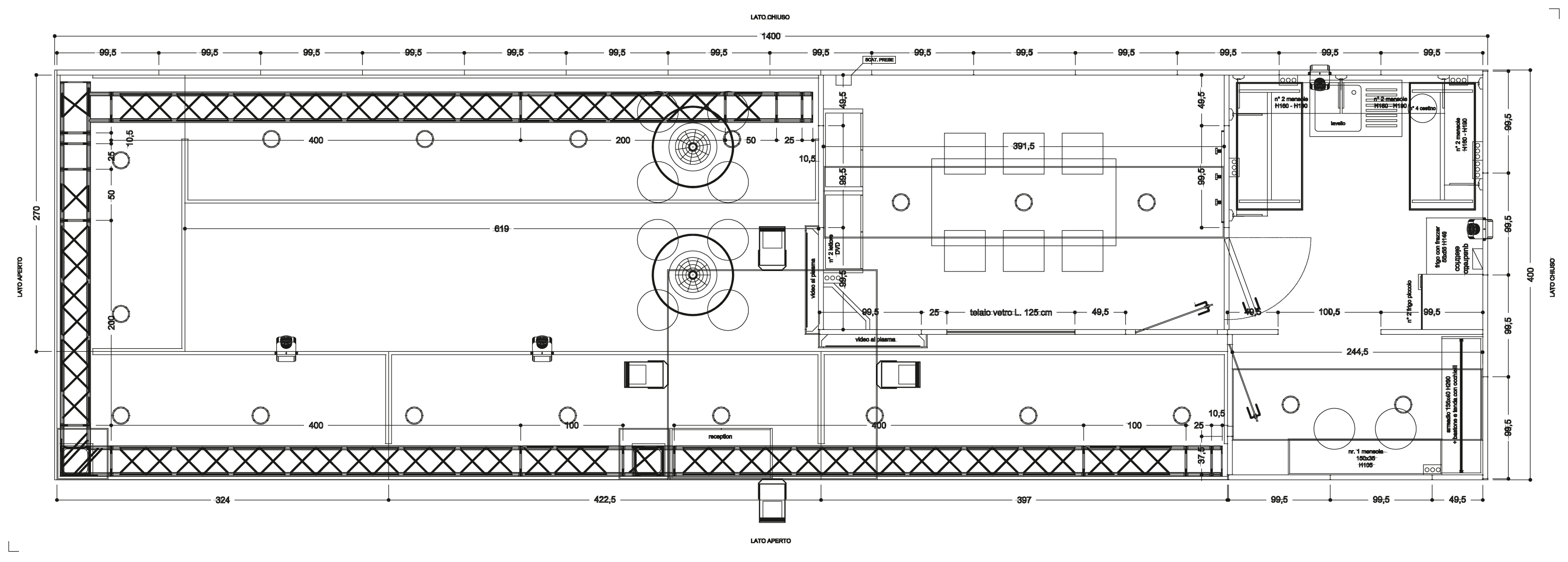
sono alle prime armi con il programma e attualmente autodidatta, non sono purtroppo ancora riuscito a partecipare ad uno dei corsi di C4D Zone. Utilizzo il programma principalmente per la realizzazione dei primi layout di stand fieristici, oltre al render ora dovrei abbinare una pianta in 2D in modo da capire spazi e dimensioni. E' possibile con C4D esportare una versione della vista in pianata dall'alto tipo l'immagine che provo ad allegare?
Grazie a tutti
Buona Giornata!
Giordano
- autumnkeys
- Messaggi: 569
- Iscritto il: ven ago 15, 2008 12:02 pm
Re: da 3D a pianta 2D
si, é possibile, basta creare una camera, posizionarla in alto, ruotarla verso il basso.
dopodiché é fondamentale impostare il parametro "proiezione" su "sopra", in modo che la vista risulti piatta e non prospettica.
questo é il procedimento per ottenere una visuale planimetrica, e lo puoi fare anche per prospetti laterali, modificando lo stesso parametro su "sinistra, destra frontale o retro" a seconda di ció che ti serve.
quando renderizzi devi peró fare attenzione agli oggetti attivi, per cui per ottenere una vera e propria pianta simile a quelle prodotte da software cad, dovrai attivare in render solo i muri e/o le singole cose che ti servono, perché qualsiasi cosa al di sopra di essi andrá a nasconderli.
a quel punto ti consiglio di utilizzare il render "sketch and toon" per far uscire gli oggetti tutti bianchi con i bordi neri, cosa che puoi impostare nei materiali sketch.
Re: da 3D a pianta 2D
Grazie
Giordano
- autumnkeys
- Messaggi: 569
- Iscritto il: ven ago 15, 2008 12:02 pm
Re: da 3D a pianta 2D
ci sono tutti gli oggetti presenti nella scena, che puoi vedere in una delle 4 viewport standard (di cui una é la vista planimetrica dall'alto), o in altre visuali impostate da te, ma non é una cosa tipo Revit o Archicad dove setti un piano di sezione e il software crea un'esportazione 2D di ció che vede in quella sezione.
puoi esportare un dxf da cinema4D, ma é comunque un file in 3D che devi ripulirti in seguito in un software cad.
solitamente é il contrario che si fa: si progetta in cad 2D o 3D, quindi si esporta tutto in cinema4D per renderizzare o animare.
per fare quello che é il tuo lavoro, nel mio ufficio una persona faceva tutti i disegni in cad 2D che poi esportava in pdf o immagine, mentre io separatamente renderizzavo il progetto in 3D, e il tutto si univa in un unico layout in Illustrator.
quello che vuoi fare tu si puó anche fare, ma essendo il procedimento opposto a quello "standard" per queste cose, é un po' un casino, lungo e macchinoso.
Re: da 3D a pianta 2D
-
- Advertising



FOLLOW US