Modellare un ufficio partendo da immagine planimetria

Forum per: Modellazione, Texturing, Animazione, Composting e tutto quello che riguarda il normale utilizzo di Cinema4D.

Moderatori: Arkimed, natas, visualtricks, cappellaiomatto

Rispondi
  • Advertising
davide445
Messaggi: 56
Iscritto il: lun set 15, 2014 12:57 am

Modellare un ufficio partendo da immagine planimetria

Messaggio da davide445 »

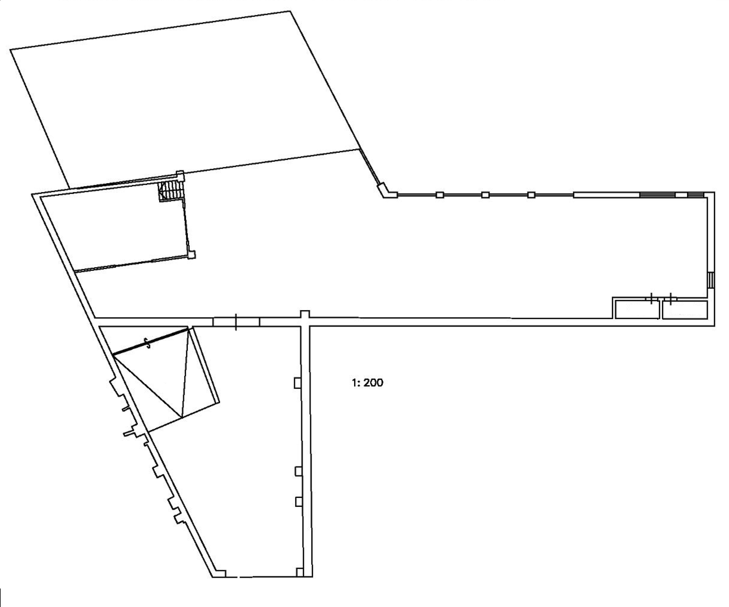
Vorrei modellare un ufficio partendo da una planimetria disponibile solo come immagine (quella allegata), c'è qualche metodo furbo per farlo?
Allegati
Map.jpg
Avatar utente
myskin
Messaggi: 1117
Iscritto il: gio mag 29, 2008 8:48 pm

Re: Modellare un ufficio partendo da immagine planimetria

Messaggio da myskin »

.. direi ricalcare con spline lineare (aggiungendo poi i punti anche per le aperture) che poi estruderai trovandoti già le linee delle aperture. Rendi modificabile poi con il "ponte" e sfondi le aperture. Non è tanta roba, dovresti cavarci le gambe con poco.. caldo permettendo!
Buon lavoro!
Avatar utente
nexzac
Messaggi: 4888
Iscritto il: mer dic 03, 2008 4:08 pm
Località: Milano

Re: Modellare un ufficio partendo da immagine planimetria

Messaggio da nexzac »

davide445 ha scritto:Vorrei modellare un ufficio partendo da una planimetria disponibile solo come immagine (quella allegata), c'è qualche metodo furbo per farlo?
feci un tutorial tempo fa (vorrei tanto avere il tempo di fare la seconda parte) che dovrebbe aiutarti, in box modelling

https://www.youtube.com/watch?v=kqreNAq8A5U

;)
Immagine
"if you can't explain it simply, you don't understand it well enough"
  • Advertising
Rispondi